Het vervolg op het interview met Clifford Scholten uit Nieuwsbrief 3.
Een verslag van de huidige eigenaren van Huis Scholten, Charlotte en Paul Boontje.
In november 2007 kregen wij als Amsterdamse Baambruggers de kans om het dubbele Rietveldhuis te kopen. Het huis had toen al een bijzondere status in het dorp. Een heel merkwaardig gebouw, zo midden in de oude dorpskern, totaal overwoekerd door de natuur en vanaf beide kanten bijna nauwelijks nog zichtbaar. Nadat wij via de makelaar hadden kenbaar gemaakt belangstelling te hebben in de aankoop van beide huizen, werden wij uitgenodigd om kennis te komen maken met Herman Scholten en zijn zonen. In het atelier van Scholten, de voor het Rietveldhuis kenmerkende “zwarte toren”, mochten wij ons plan ontvouwen. De vrees bestond dat twee jonge cultuurbarbaren het huis zouden slopen om ruimte te maken voor iets geheel nieuws op deze prachNge locaNe aan het riviertje De Angstel. Maar ons plan was nu juist om het in 1958 door Rietveld ontworpen en bij wijze van kunstgreep “in tweeën gedeelde” huis weer samen te voegen tot één fraaie bungalow, in lijn met het oorspronkelijke gedachtegoed. Met die toezegging en onze beloVe ook dat Herman Scholten het resultaat zou mogen bewonderen, is nog diezelfde avond de zaak beklonken.

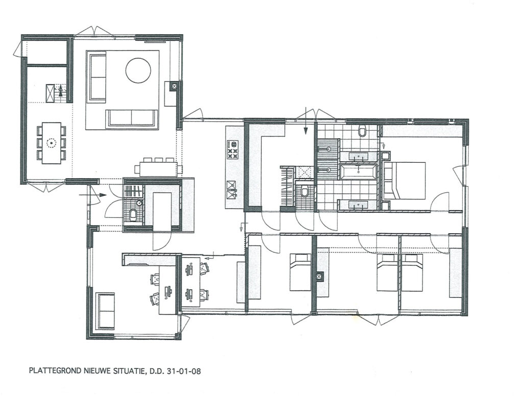
Na het doorlopen van de samenvoegingsprocedure bij de gemeente (en dat was nog een hele toestand), hebben wij de (toen nog jonge) Utrechtse interieurarchitect Remy Meijers ingeschakeld om ons hierin te begeleiden. Remy Meijers voelde zich vereerd dat hij aan de slag mocht met een huis van Rietveld. Het uitgangspunt was om met behoud van de architectonische waarde van het huis en ook rekening houdend met de oorspronkelijke ideeën en schetsen van Rietveld toe te werken naar één gemoderniseerd gezinshuis. Het huis is aan de buitenkant nagenoeg geheel intact gebleven, maar binnen volledig gestript en vervolgens in de geest van Rietveld opgebouwd. Een vergelijking tussen de oude en de nieuwe pla@egrond illustreert hoe ingrijpend het van binnen is veranderd.



Het oude atelier van Scholten (gelegen in de “zwarte toren”) is omgetoverd tot ons “woonhuis”, met een doorbraak naar de geschakelde open keuken en werkkamer welke ruimte met forse gevelopeningen is getransformeerd tot de zogenoemde “lichtstraat”, met een doorgang naar het “slaaphuis” inclusief de zogenoemde “wasstraat” in de vorm van een dubbele (gespiegelde) badkamer.



Bij de keuzes van de materialen is zoveel mogelijk aansluiNng gezocht bij de Njd waarin de bungalow is ontworpen en gebouwd. De bekende bouwkundige problemen zijn verholpen. Zo is de kruipruimte onder het huis volgespoten met schelpen, waardoor het huis ‘droog’ is.



Het is uiteindelijk een heerlijk leefhuis geworden, waar de hele dag het zonlicht kan binnenstromen en waar onze kinderen, toen ze klein waren, op hun loopfietsjes rond konden racen. De oude Scholten is na de verbouwing ook nog op bezoek geweest en het was mooi dat hij ons zijn goedkeurende blik gaf.
Paul en Charlotte Boontje
Baambrugge, 1 juni 2021